网站首页
公装领域
独栋办公
办公空间
教育空间
商业空间
会所空间
酒店空间
餐饮空间
结构幕墙
设计团队
施工体系
施工体系
优质材料
售后服务
自有工人
VR中心
VR中心
关于我们
新闻资讯
公司新闻
施工现场
行业动态
常见问题
联系我们
网站首页
公装领域
独栋办公
办公空间
教育空间
商业空间
会所空间
酒店空间
餐饮空间
结构幕墙
设计团队
施工体系
施工体系
优质材料
售后服务
自有工人
VR中心
VR中心
关于我们
新闻资讯
公司新闻
施工现场
行业动态
常见问题
联系我们
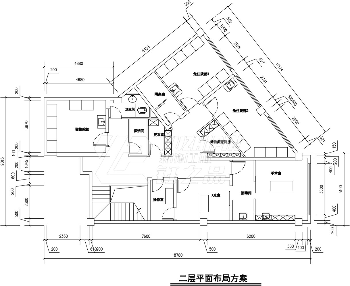
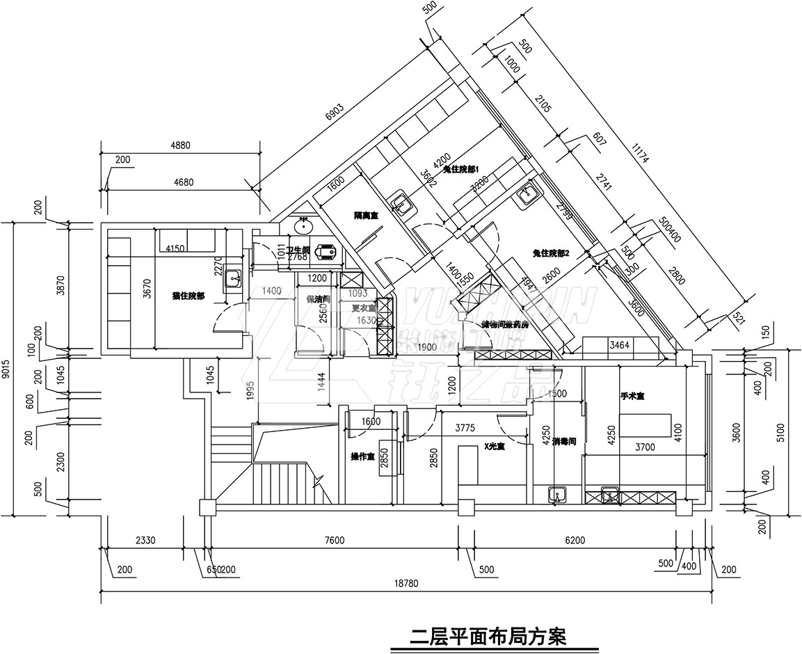
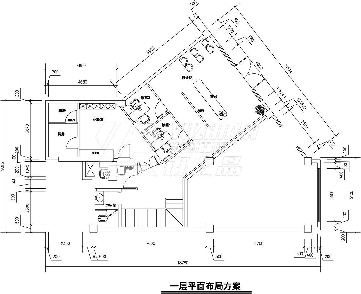
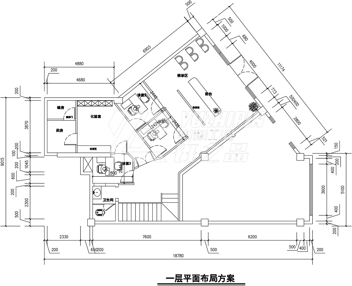
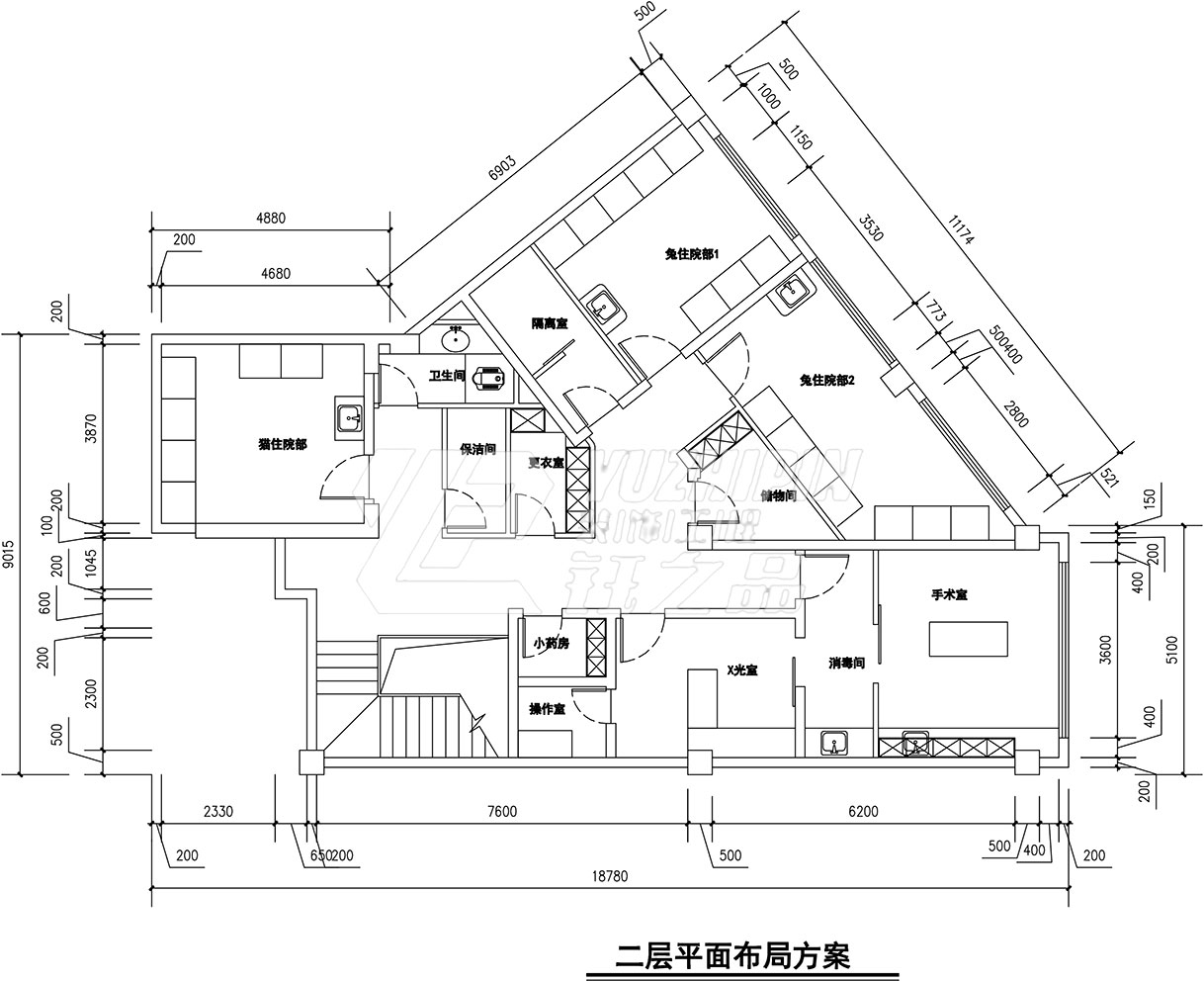
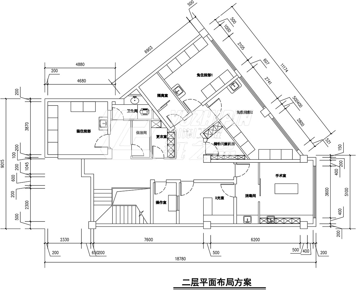
宠物医院
PROJECT CASE
项目地点: 河南省郑州市
项目时间: 2025年7月
建筑面积: 300m²
项目类型: 商业空间
声明:图片版权所有,盗图必究!
设计师:
聂晨飞
毕业院校:
河南农业大学
工作年限:
7年
擅长领域:
办公/商业/会所/餐饮/酒店空间
首页
公装领域
短信留言
一键拨号